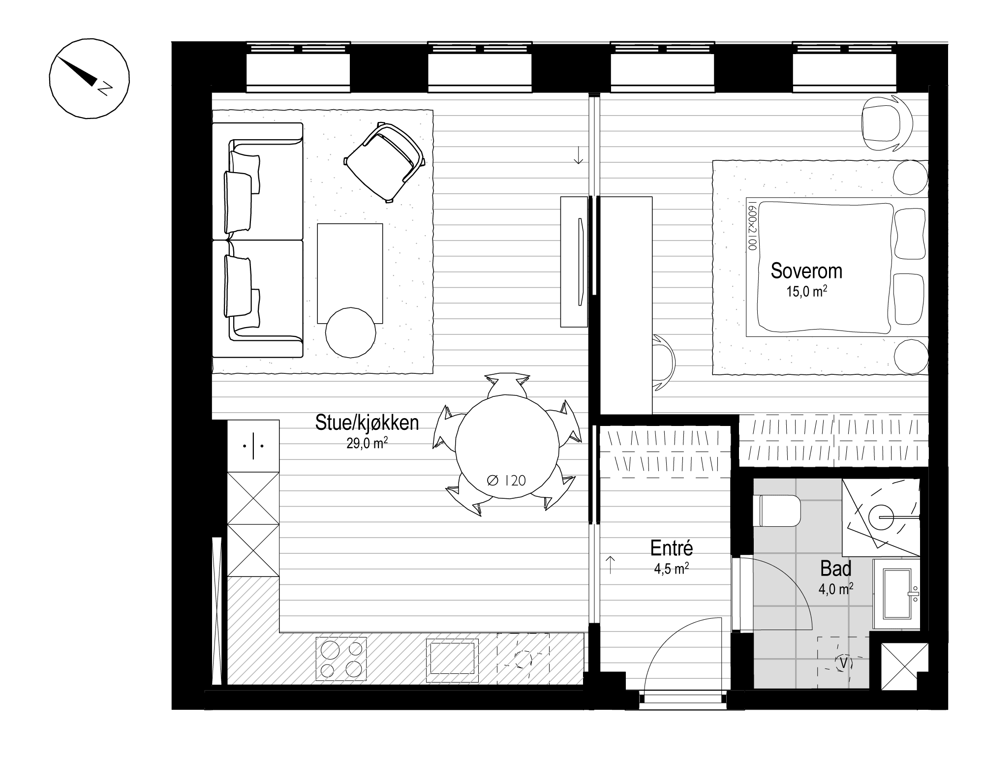
H0103
Stor 2-roms med takhøyde på hele 3,4 meter. Leiligheten inneholder entré/ gang med plass til garderobe, åpen stue- og kjøkkenløsning med plass til både sofa- og spisegruppe, romslig soverom med god plass til dobbeltseng og garderobe, samt et delikat flislagt bad med opplegg for vaskemaskin. Kjøkkenet i L-form med integrerte hvitevarer og godt med skap- og benkeplass.
Bygg
Antall rom
0
Etasje
0
BRA
60
BRA-i
55
BRA-e
5
TBA
0
Stipulerte felleskost. pr. mnd.
3 379
Pris
7 990 000
Omkostninger
18 590
Totalpris
8 008 590
