H0504
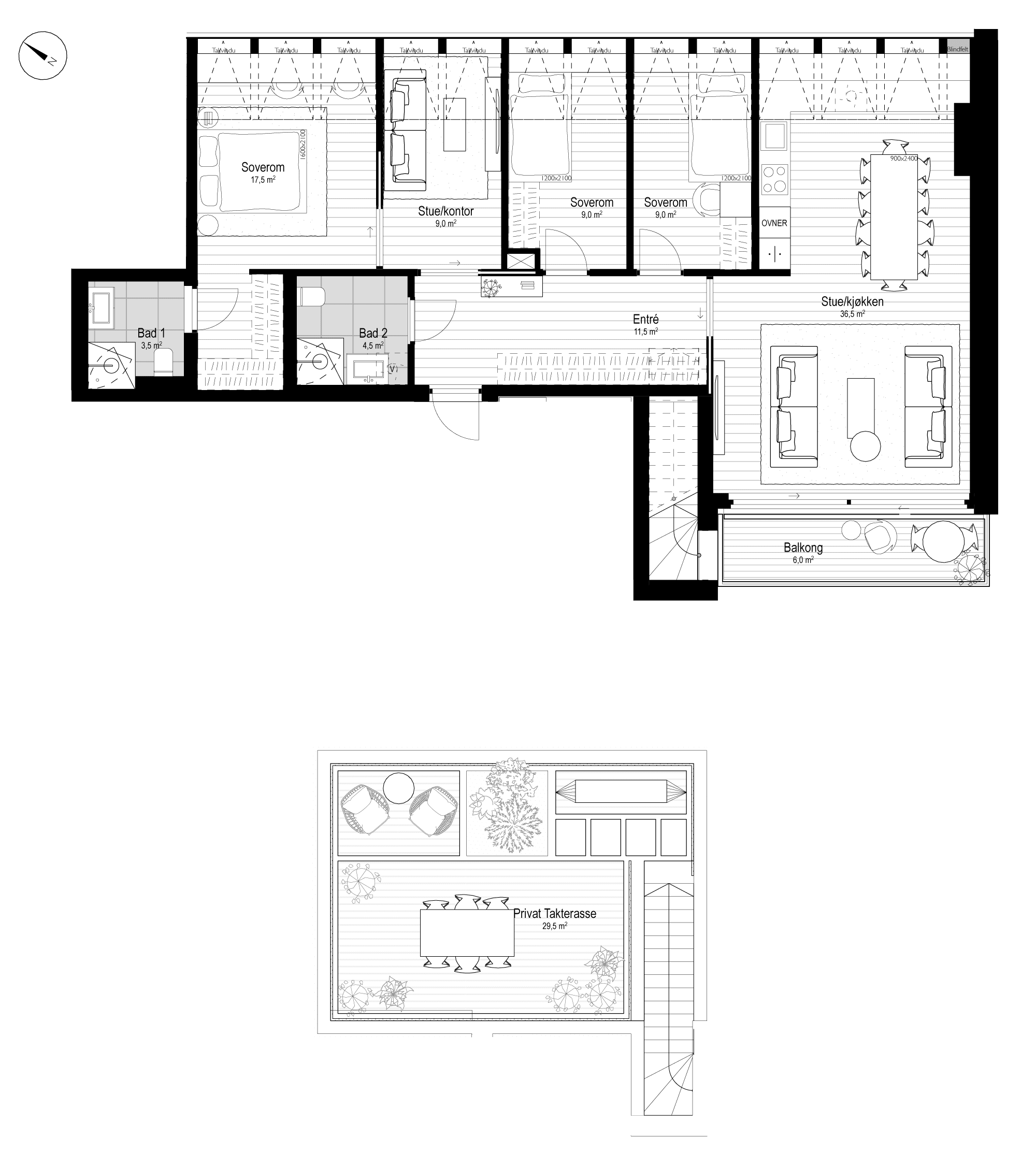
Unik 4-roms toppleilighet på BRA-i 106 m² med balkong på 6,5 m², samt privat takterrasse på 29 m². Leiligheten inneholder en raus entré/ gang med garderobeplass, stort og luftig oppholdsrom med plass til sofa- og spisegruppe, samt utgang til balkongen med videre adkomst til den private takterrassen med meget gode sol- og utsiktsforhold. Videre har leilighet et kontor/ tv-stue, 2 bad og 3 soverom. Hovedsoverommet med eget omkledningsrom og bad. Leiligheten kan også leveres som 3-roms med større oppholdsrom. Se større versjon av alternativ plantegning i prospekt.
Bygg
Antall rom
0
Etasje
0
BRA
111
BRA-i
106
BRA-e
5
TBA
35,5
Stipulerte felleskost. pr. mnd.
6 235
Pris
22 890 000
Omkostninger
18 590
Totalpris
22 908 590
